Reception Desk Vancouver / Modern Reception Desk Design
Modern Reception Desk Designs for Vancouver Businesses
A modern reception desk in Vancouver is one of the most important elements in creating a professional office environment. This modern reception desk design showcases a clean, contemporary layout built for both visual impact and everyday functionality. Designed for busy offices across Vancouver, Burnaby, Richmond, and the Lower Mainland, these reception desks provide an efficient workspace while making a lasting first impression on clients and visitors.
This short walkthrough shows a reception desk, seating area, and storage configuration used in this modern office design.
Need Help Planning Your Office?
We provide layout planning and office furniture for businesses in Vancouver, Burnaby, Richmond, Surrey, Langley and the rest of the lower mainland.
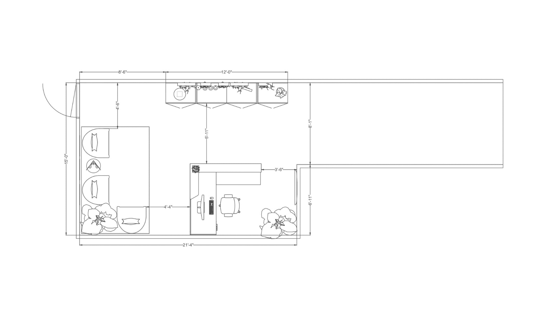
Office Reception Layout Plan
Below is a modern reception desk layout in Vancouver, featuring both a 2D floor plan and a 3D rendering to illustrate how the space works in a real office setting. Modern reception desk designs like this are widely used throughout Vancouver and the Lower Mainland because they combine strong first impressions with practical workspace efficiency.
Get a custom reception desk layout, 3D visuals, and a clear quote tailored to your space.
Looking for a Different Reception Desk Style?
If you’re exploring more design-driven options, take a look at reception desk layouts tailored to your space, workflow, and brand.
Real Businesses. Real Offices. Real Results.
Helping businesses move, expand, and upgrade with confidence.
Do You Need Help with Space-Planning and Furniture Selection?
TRANSFORM YOUR OFFICE SPACE
With our expertise, we have helped hundreds of businesses transform their office spaces into modern, functional environments through comprehensive space planning and creative office furniture solutions.
Which option best describes your situation?
Trusted by Businesses Across Metro Vancouver
From Planning to Setup—We’re Ready to Support Your Business
Our Latest Articles To Help You With Your Office Furniture Investment.
PREMIER OFFICE INTERIORS
The Ultimate Guide to Expanding, Moving or Upgrading Your Office: A Comprehensive Resource for Vancouver Office Furniture Transformation
The Ultimate Guide to Expanding, Moving or Upgrading Your Office is a comprehensive resource that provides practical tips, expert advice, and real-life case studies for businesses looking to transform their office spaces.
604-380-1279
147 – 8623 Granville St. Vancouver, B.C. V6P 5A2
team@premierofficeinteriors.net
Hours of Operation:
Monday - Friday: 8:00am - 4:00pm
**Showroom By Appointment Only**
© 2024. All rights reserved.


















