Two-Floor Office Furniture Project for a Major Canadian Electrical Supplies Distributor
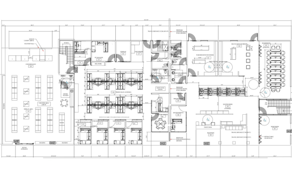
Ground Floor 2D
→
Ground Floor 3D
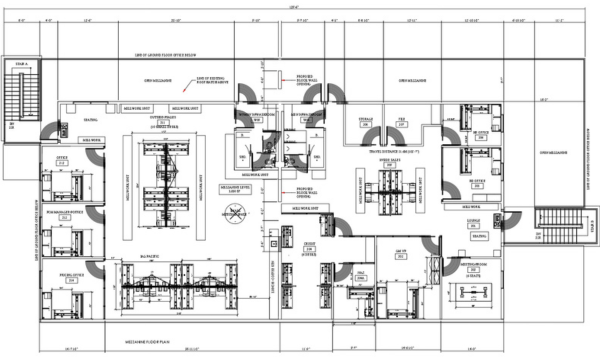
Mezzanine Floor 2D
→
Mezzanine Floor 3D
Project Overview
We partnered with a leading Canadian distributor on the design and installation of their brand-new two-floor office location on Still Creek Ave in Burnaby, BC. The project included open office areas, private offices, meeting rooms, lunchrooms, and an accounting office, delivering a modern, bright workspace tailored to the client’s operational needs.
Scope of Work
- Open Office Areas: Two open-plan workspaces, one on each floor, featuring 48 total workstations with electric height-adjustable tables, open metal shelves, and box/box/file drawer pedestals. The divider panel system included 50” high fabric panels with 12” top-mounted glass to maximize natural light flow from the floor-to-ceiling windows. Integrated panel system electrical was powered from PAC poles, providing convenient power and data access at each workstation.
- Private Offices: 14 private offices furnished with L-shape height-adjustable tables, fixed-height back credenzas, one box/box/file drawer pedestal per office, and floating frosted modesty panels.
- Meeting Rooms and Lunchrooms: Two meeting rooms and two lunchrooms designed for collaborative work and employee comfort.
- Accounting Office: Six workstations configured to promote efficiency and light distribution throughout the space.
Design Highlights
- Modern, bright office with light woodgrain floors and abundant glass features.
- Workstations positioned to take full advantage of natural light from floor-to-ceiling windows.
- Sleek white laminate finish on workstations, complemented by beige fabric panels with silver trim.
- Mesh-back task chairs paired with matching client chairs for a cohesive, professional look throughout.
Challenges & Solutions
- Construction Delay: The client’s construction timeline ran a few months behind schedule. We proactively stored the furniture to ensure readiness once the site was complete.
- Quick Installation: To meet the client’s deadlines, our team worked weekends and even a holiday Monday to complete the installation efficiently.
- Space Change: A previously unplanned column in the downstairs open area required minor modifications to the workstation layout during installation. Our team quickly adapted to maintain workflow and aesthetics.
Outcome
The result is a functional, modern, and visually bright workspace that supports collaboration and productivity across two full floors. The integration of height-adjustable desks, panel system electrical, and smart workstation layouts ensures the client’s team can work comfortably and efficiently while enjoying the abundant natural light.
~ Click through the slideshow to view more images. ~
Looking to optimize your space and select the right furniture?
Count on us for professional guidance!
By consulting with one of our office furniture experts we will ensure you choose the best furniture solution for your specific needs.
Our Latest Articles To Help You With Your Office Furniture Investment.
PREMIER OFFICE INTERIORS
The Ultimate Guide to Expanding, Moving, or Upgrading Your Office: A Comprehensive Resource for Office Furniture Transformation
The Ultimate Guide to Expanding, Moving or Upgrading Your Office is a comprehensive resource that provides practical tips, expert advice, and real-life case studies for businesses looking to transform their office spaces.
604-380-1279
147 – 8623 Granville St. Vancouver, B.C. V6P 5A2
team@premierofficeinteriors.net
Hours of Operation:
Monday - Friday: 8:00am - 4:00pm
**Showroom By Appointment Only**
© 2024. All rights reserved.





