Open Office Workstations Upgrade
Law Firm – Langley, BC
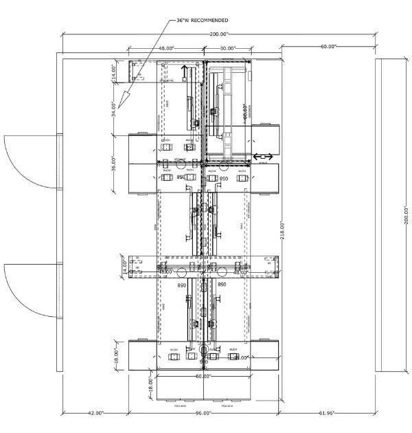
2D
→
3D
Project Overview
This Langley-based law firm needed to modernize an existing office area to improve efficiency, increase capacity, and incorporate more storage — all without expanding their footprint.
Previously, the space housed four larger workstations. The client’s goal was to reconfigure the area to accommodate six workstations instead of four, while also integrating significantly more storage and improving workflow.
We designed and installed a new open office benching pod consisting of six workstations, maximizing the available space and creating a more functional, streamlined layout.
The Challenge
- Expansion from 4 to 6 workstations in the same footprint
- More integrated storage for shared files and supplies
- Power and data access at every station
- Privacy without fully enclosing the space
- One height-adjustable workstation to accommodate a specific employee
- Minimal disruption to operations
The Solution
Efficient Benching Layout
We implemented a low-height divider panel system in an open benching configuration. The new workstations are slightly smaller than the previous desks, but they make far better use of the space, allowing us to comfortably fit six positions while improving overall flow.
Shared storage bins and drop credenzas were incorporated to maximize storage without overcrowding the footprint.
Integrated Power & Data
The client selected an integrated panel system electrical solution, allowing power and data access at each workstation.
Power modules are positioned in a trough system mounted just below the worksurface, keeping cabling organized and accessible while maintaining a clean aesthetic.
Height Adjustable Workstation
Out of the six workstations, one was specified as height-adjustable to accommodate the ergonomic needs of a team member. The adjustable station integrates seamlessly with the benching system while providing flexibility and comfort.
Design Details
- White worksurfaces
- Dark woodgrain base
- Black metal legs and accessories
- Beige tackable fabric panels (interior)
- Dark laminate panel exteriors for durability in high-traffic areas
- Frosted glazed desktop partitions to provide privacy while maintaining openness
Seamless Installation
To minimize disruption, we coordinated the project around the firm’s schedule:
- Delivered new workstations Friday afternoon
- Dismantled and responsibly disposed of the four existing desks
- Completed full installation over the weekend
By Monday morning, the team was fully operational in their upgraded workspace — with zero interruption to client service.
Results
- Increased capacity from 4 to 6 workstations
- Significantly improved storage integration
- Enhanced power and data accessibility
- Improved ergonomic flexibility
- Modernized office aesthetic
- Completed with no operational downtime
This project demonstrates how thoughtful space planning and smart workstation design can dramatically increase functionality — even within an existing footprint.
Looking to optimize your space and select the right furniture?
Count on us for professional guidance!
By consulting with one of our office furniture experts we will ensure you choose the best furniture solution for your specific needs.
Our Latest Articles To Help You With Your Office Furniture Investment.
PREMIER OFFICE INTERIORS
The Ultimate Guide to Expanding, Moving, or Upgrading Your Office: A Comprehensive Resource for Office Furniture Transformation
The Ultimate Guide to Expanding, Moving or Upgrading Your Office is a comprehensive resource that provides practical tips, expert advice, and real-life case studies for businesses looking to transform their office spaces.
604-380-1279
Hours of Operation:
Monday - Friday: 8:00am - 4:00pm
**Showroom By Appointment Only**





